БАУПРОФИC
+7(987)1082-64-54
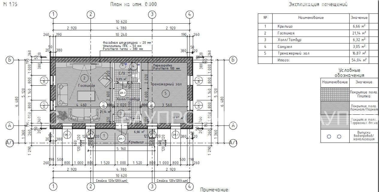
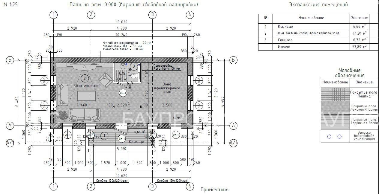
ОДНОЭТАЖНЫЙ ДОМ ИЗ КРУПНОФОРМАТНОЙ КЕРАМИКИ ПЛОЩАДЬЮ 58 КВ.М

ПРОЕКТ: КФК - 58
Общая площадь дома - 58,0 м2.
Полезная / жилая площадь дома - 44,9 м2.
Площадь крыльца - 6,7 м2.
Площадь котельной - Нет.
Площади санузлов - 6,4м2.
Высота дома - 4,6 м.
КОМПЛЕКТАЦИЯ ДОМА "ТЁПЛЫЙ КОНТУР":
Фундамент - монолитная ж/б плита толщиной 250 мм с утеплением 50 мм.
Закладные под инженерные системы: водоснабжение, водоотведения и электричество.
Несущие стены дома - крупноформатные блоки Porotherm 38 Thermo под наружную отделку облицовочным керамическим кирпичом.
Наружные опорные столбы первого этажа - деревянные.
Чердачное перекрытие - Нет.
Кровля скатная. Несущие конструкции - деревянные. Утепление кровли - 250 мм. Покрытие кровли - металлочерепица. Водосточная система - наружная. Трубчатая система снегозадержания.
Подшивная доска для свесов кровли, планкен прямой неокрашенный
Окна из ПВХ - профиля толщиной 70 мм. Стеклопакеты: 40 мм.
Цвет профиля: Белый. Отливы оконные. Москитные сетки.
Дверь входная металлическая, временная.






КОНСУЛЬТАЦИЯ
ПО СТРОИТЕЛЬСТВУ ВАШЕГО ДОМА
Мы перезвоним Вам обязательно и ответим на все Ваши вопросы по строительству дома!