БАУПРОФИC
+7(987)1082-64-54
ОДНОЭТАЖНЫЙ ДОМ ИЗ КРУПНОФОРМАТНОЙ КЕРАМИКИ ПЛОЩАДЬЮ 380 КВ.М

ПРОЕКТ: КФК - 380
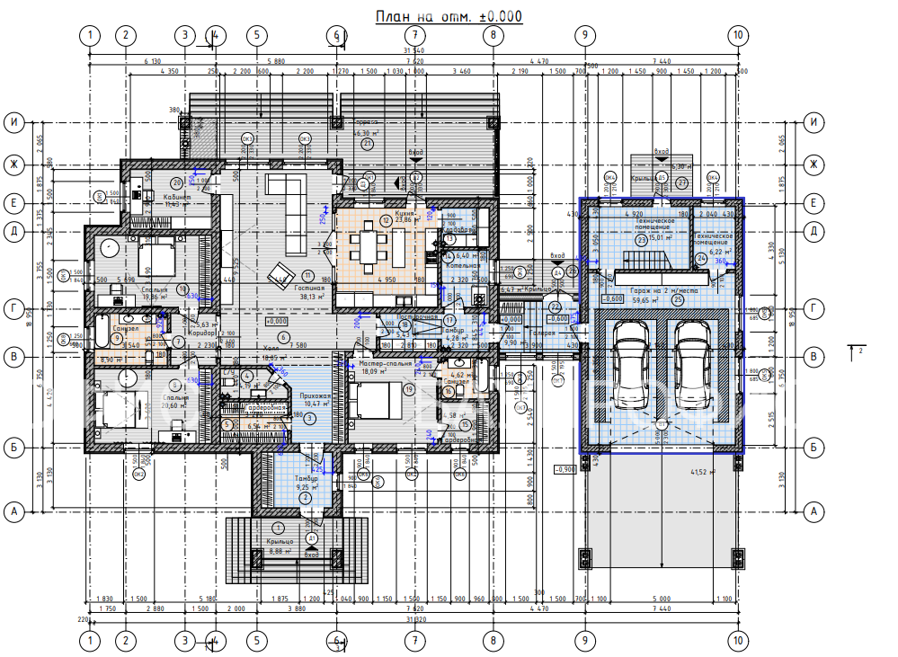
Общая площадь дома - 380,0 м2.
Полезная / жилая площадь дома - 121,7 м2.
Площадь террасы и крыльца - 66,9 м2.
Площадь котельной - 6,4 м2.
Площади спален - 20,6 / 19,9 / 18,0 м2.
Площади санузлов - 4,1 / 8,9 / 4,6 м2.
Площадь гостиной - 38,1 м2.
Высота дома - 6,7 м.
КОМПЛЕКТАЦИЯ ДОМА "ТЁПЛЫЙ КОНТУР":
Фундамент - монолитная ж/б плита толщиной 300 мм с утеплением 50 мм.
Закладные под инженерные системы: водоснабжение, водоотведения и электричество.
Несущие стены дома - крупноформатные блоки Porotherm 38 Thermo под наружную отделку облицовочным керамическим кирпичом.
Внутренние опорные столбы первого этажа - железобетонные, наружные - кирпичные.
Чердачное перекрытие - деревянное.
Кровля скатная. Несущие конструкции - деревянные. Утепление кровли - 250 мм. Покрытие кровли - металлочерепица. Водосточная система - наружная. Трубчатая система снегозадержания.
Подшивная доска для свесов кровли, планкен прямой неокрашенный
Окна из ПВХ - профиля толщиной 70 мм. Стеклопакеты: 40 мм.
Цвет профиля: Белый. Отливы оконные. Москитные сетки.
Дверь входная металлическая, временная.







КОНСУЛЬТАЦИЯ
ПО СТРОИТЕЛЬСТВУ ВАШЕГО ДОМА
Мы перезвоним Вам обязательно и ответим на все Ваши вопросы по строительству дома!