БАУПРОФИC
+7(987)1082-64-54
ДВУХЭТАЖНЫЙ ДОМ ПО КОМБИНИРОВАННОЙ ТЕХНОЛОГИИ ПЛОЩАДЬЮ 326 КВ.М

ПРОЕКТ: ДКТ - 326
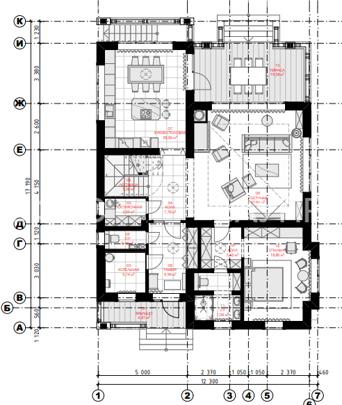
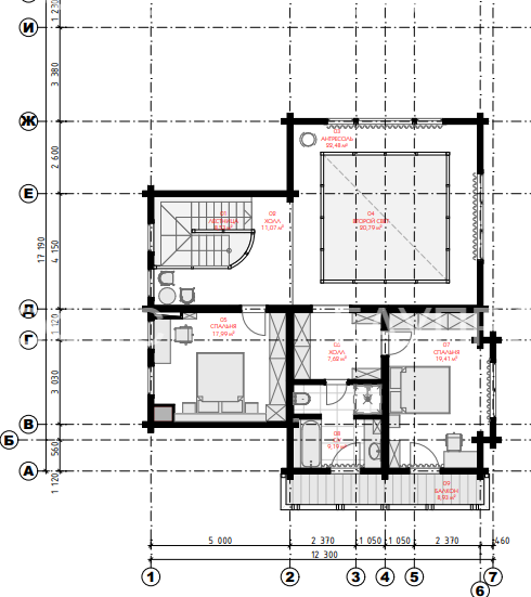
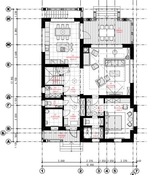
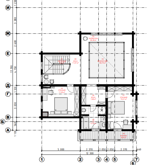
Общая площадь дома - 326,0 м2.
Полезная / жилая площадь дома - 94,2 м2.
Площадь террасы и крыльца - 25,8 м2.
Площадь котельной - 5,2 м2.
Площади спален - 18,9 / 18,0 / 19,4 м2.
Площади санузлов - 2,4 / 7,0 / 9,2 м2.
Площадь гостиной - 38,0 м2.
Высота дома - 8,3 м.
КОМПЛЕКТАЦИЯ ДОМА "ТЁПЛЫЙ КОНТУР":
Фундамент - монолитная ж/б плита толщиной 300 мм с утеплением 50 мм.
Закладные под инженерные системы: водоснабжение, водоотведения и электричество.
Несущие стены первого этажа - из крупноформатных блоков Porotherm 44 (440мм).
Несущие стены второго этажа - из клееного бруса сечением 200х270(h)мм (ШхВ).
Опорные столбы первого этажа - железобетонные. Столбы на крыльце и террасе - деревянные, выполняемые по ж/б пилонам. Столбы второго этажа - деревянные.
Перекрытие межэтажное - по сборным ж/б плитам перекрытия и частично монолитному ж/б участку в зоне второго света.
Кровля скатная. Несущие конструкции - деревянные. Утепление кровли - 250 мм. Покрытие кровли - металлочерепица. Водосточная система - наружная. Трубчатая система снегозадержания.
Подшивная доска для свесов кровли, планкен прямой неокрашенный
Окна из ПВХ - профиля толщиной 70 мм. Стеклопакеты: 40 мм.
Цвет профиля: Белый. Отливы оконные. Москитные сетки.
Дверь входная металлическая, временная.










КОНСУЛЬТАЦИЯ
ПО СТРОИТЕЛЬСТВУ ВАШЕГО ДОМА
Мы обязательно Вам перезвоним и ответим на все Ваши вопросы по строительству дома!