БАУПРОФИC
+7(987)1082-64-54
ДВУХЭТАЖНЫЙ ДОМ ПО КОМБИНИРОВАННОЙ ТЕХНОЛОГИИ ПЛОЩАДЬЮ 286 КВ.М

ПРОЕКТ: ДКТ - 286
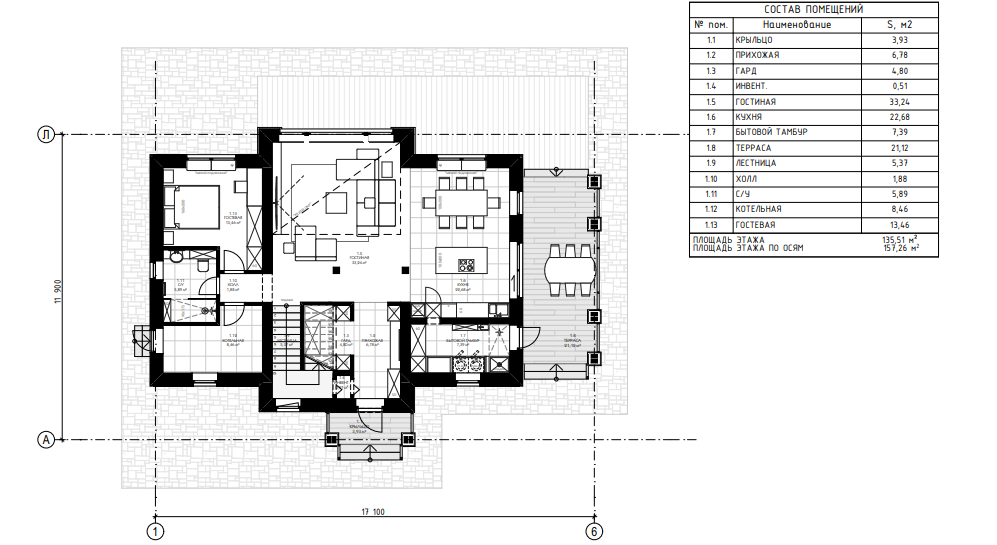
Общая площадь дома - 286,0 м2.
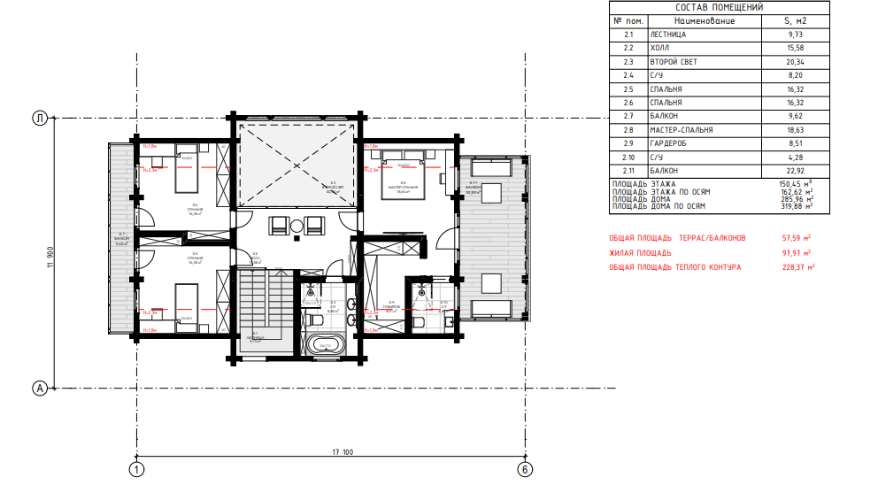
Полезная / жилая площадь дома - 98,0 м2.
Площадь террасы и крыльца - 25,0 м2.
Площадь котельной - 8,5 м2.
Площади спален - 13,4 / 16,3 / 16,3 / 18,6 м2.
Площади санузлов - 5,9 / 8,2 / 4,3 м2.
Площадь гостиной - 33,2 м2.
Высота дома - 8,4 м.
КОМПЛЕКТАЦИЯ ДОМА "ТЁПЛЫЙ КОНТУР":
Фундамент - монолитная ж/б плита толщиной 300 мм с утеплением 50 мм.
Закладные под инженерные системы: водоснабжение, водоотведения и электричество.
Несущие стены первого этажа - из крупноформатных блоков Porotherm 38 Thermo (380мм).
Несущие стены второго этажа - из клееного бруса сечением 200х270(h)мм (ШхВ).
Опорные столбы первого этажа - железобетонные. Столбы на крыльце и террасе - деревянные, выполняемые по ж/б пилонам. Столбы второго этажа - деревянные.
Перекрытие межэтажное - по сборным ж/б плитам перекрытия и частично монолитному ж/б участку в зоне второго света.
Кровля скатная. Несущие конструкции - деревянные. Утепление кровли - 250 мм. Покрытие кровли - металлочерепица. Водосточная система - наружная. Трубчатая система снегозадержания.
Подшивная доска для свесов кровли, планкен прямой неокрашенный
Окна из ПВХ - профиля толщиной 70 мм. Стеклопакеты: 40 мм.
Цвет профиля: Белый. Отливы оконные. Москитные сетки.
Дверь входная металлическая, временная.














