БАУПРОФИC
+7(987)1082-64-54
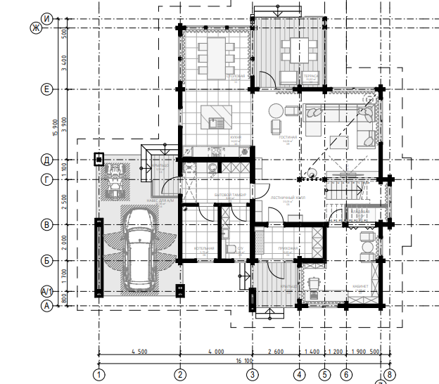
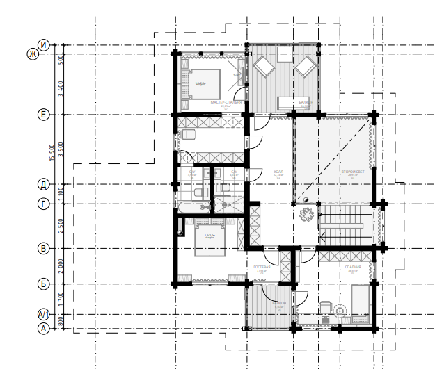
ДВУХЭТАЖНЫЙ ДОМ ИЗ КЛЕЁНОГО БРУСА ПЛОЩАДЬЮ 316 КВ.М

ПРОЕКТ: ДКБ - 316
Общая площадь дома - 316,0 м2.
Полезная / жилая площадь дома - 123,1 м2.
Площадь террасы и крыльца - 47,7 м2.
Площадь котельной - 5,8 м2.
Площади спален - 18,3 / 17,9 / 22,1 м2.
Площади санузлов - 4,7 / 4,6 / 4,9 м2.
Площадь гостиной - 34,0 м2.
Высота дома - 8,1 м.
КОМПЛЕКТАЦИЯ ДОМА "ТЁПЛЫЙ КОНТУР":
Фундамент - монолитная ж/б плита толщиной 300 мм с утеплением 50 мм.
Закладные под инженерные системы: водоснабжение, водоотведения и электричество.
Несущие стены первого и второго этажей - из клеёного бруса, толщиной 200 мм.
Внутренние и наружные опорные столбы - деревянные.
Чердачное перекрытие - деревянное.
Кровля скатная. Несущие конструкции - деревянные. Утепление кровли - 250 мм. Покрытие кровли - металлочерепица. Водосточная система - наружная. Трубчатая система снегозадержания.
Подшивная доска для свесов кровли, планкен прямой неокрашенный
Окна из ПВХ - профиля толщиной 70 мм. Стеклопакеты: 40 мм.
Цвет профиля: Белый. Отливы оконные. Москитные сетки.
Дверь входная металлическая, временная.









