БАУПРОФИC
+7(987)1082-64-54
ДВУХЭТАЖНЫЙ ДОМ ИЗ КЕРАМИЧЕСКИХ БЛОКОВ ПЛОЩАДЬЮ 133 КВ.М

ПРОЕКТ: КФК - 133
Общая площадь дома - 133,4 м2.
Площадь террасы и крыльца - 31,2 м2.
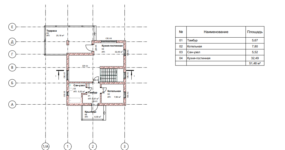
Площадь первого этажа по внутренним стенам - 51,5 м2.
Площадь второго этажа по внутренним стенам - 50,7 м2.
КОМПЛЕКТАЦИЯ ДОМА "ТЁПЛЫЙ КОНТУР":
Фундамент - монолитная ж/б плита толщиной 250 мм с утеплением 50 мм.
Закладные под инженерные системы: водоснабжение, водоотведения и электричество.
Несущие стены дома - из крупноформатных блоков Porotherm 38 Thermo (380мм).
Опорные столбы первого этажа - железобетонные. Столбы на крыльце и террасе - деревянные.
Перекрытие межэтажное - по сборным ж/б плитам перекрытия.
Кровля скатная. Несущие конструкции - деревянные. Утепление кровли - 250 мм. Покрытие кровли - металлочерепица. Водосточная система - наружная. Трубчатая система снегозадержания.
Подшивная доска для свесов кровли, планкен прямой неокрашенный
Окна из ПВХ - профиля толщиной 70 мм. Стеклопакеты: 40 мм.
Цвет профиля: Белый. Отливы оконные. Москитные сетки.
Дверь входная металлическая, временная.







КОНСУЛЬТАЦИЯ
ПО СТРОИТЕЛЬСТВУ ВАШЕГО ДОМА
Мы обязательно Вам перезвоним и ответим на все Ваши вопросы по строительству дома!